– ALMENNO SAN BARTOLOMEO
Importante proprietà settecentesca di mq 1900 totali dotata di mq 8.000 di parco storico riccamente piantumato, composta da villa padronale, casa del custode, casa uffici con sala ricreativa, edificio esterno, serra ed autorimesse per 9 vetture.
La tenuta si colloca in pieno centro paese in posizione collinare e panoramica, distante pochi passi dal golf club l’Albenza, distante 20 minuti da Bergamo, 15 minuti dallo svincolo autostradale di Dalmine, 60 minuti da Milano, comoda per tutti i servizi ed i centri commerciali che offre la zona.
La proprietà è cosi composta:
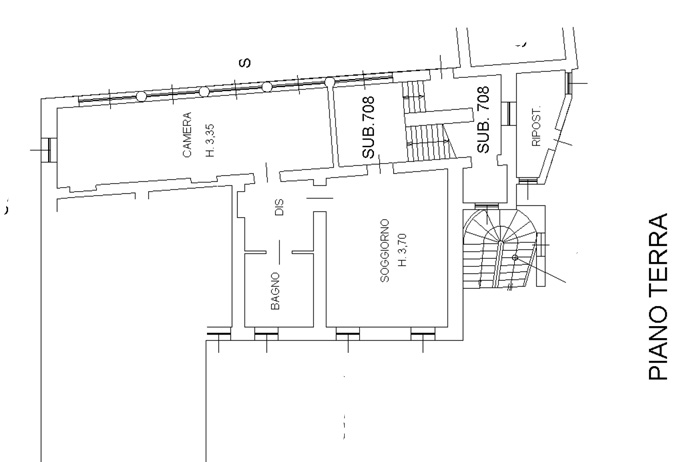
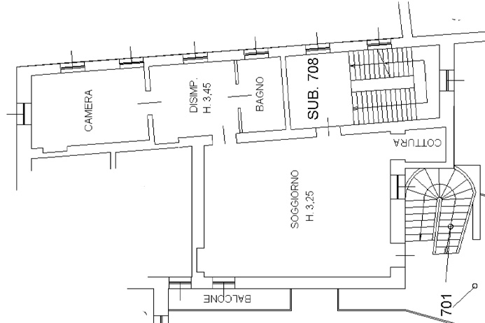
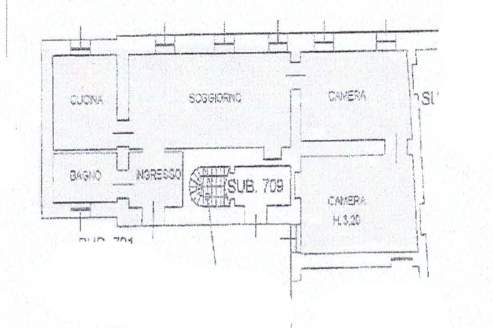
Villa padronale di mq 700 circa dislocata su 3 livelli e composta da 3 unità abitative.
Edificio di circa mq 300 composto da uffici di rappresentanza al piano primo e sala ricreativa al piano terreno oltre che cantina al piano interrato.
Casa del custode di circa mq 200 dislocata su 2 livelli.
Edificio esterno da ristrutturare di circa mq 230 dislocato su 2 livelli.
Magazzino adibito ad autorimessa per 9 vetture di circa mq 400.
Serra e legnaia di circa mq 70.
La villa padronale è stata completamente e finemente ristrutturata nel 2005 mantenendo inalterate le caratteristiche e le finiture dell’epoca quali soffitti riccamente affrescati ed in travi in legno a vista, pavimenti in legno e cementine, splendidi camini originali, pietra, lussuosi bagni ed impianti completamente ristrutturati e adeguati alle moderne tecnologie ed esigenze abitative.
Alla villa si accede tramite un vialetto carrale con cancellata che accede al cortile principale dove si apre la facciata dell’immobile.
Internamente la villa è composta da un grande ingresso con scalone principale a disimpegno dei 3 piani dell’immobile, ampia area a veranda affrescata che si affaccia sul cortile principale e sul parco, inoltre sono presenti ulteriori 2 scale di collegamento interne a servizio delle 3 abitazioni presenti.
La villa è composta da 5 soggiorni, 3 cucine, 10 camere da letto e 6 bagni.
L’edificio adiacente adibito ad uffici e area ricreativa è stato anch’esso completamente ristrutturato ed internamente composto da:
Al piano terreno una grande area open space di mq 120 adibita ad area ricreativa dotata di cucina, angolo bar, camino in mattoni, soffitti con travi a vista.
Al piano interrato è presente una grande cantina con volte a botte ottima per la conservazione dei vini e degli alimenti.
Al piano primo sono presenti 3 ambienti di grandi dimensioni ad uso ufficio oltre che bagno, dotato di pavimenti in parquet e travi a vista.
La casa del custode è adiacente l’edificio uffici e l’area ricreativa e si compone di un’abitazione dislocata su 2 livelli completamente ristrutturata nel 2010 composta da soggiorno, cucina e bagno al piano terreno oltre che 3 camere da letto ed ulteriore bagno al piano primo.
La casa del custode e l’edificio uffici sono confinanti all’autorimessa dove si possono alloggiare fino a 9 vetture, e godono di un accesso interno in modo da rendere gli edifici funzionalmente indipendenti in base all’utilizzo che se ne desidera effettuare.
E’ inoltre presente un ulteriore edificio confinante con la casa del custode ma fisicamente esterno alla tenuta e dotato di ingresso indipendente dove attualmente è presente il vialetto di ingresso principale, questo edificio è dislocato su 2 livelli ed attualmente necessita di una totale ristrutturazione e può essere utilizzato quali ulteriori aree abitative oppure per diversi usi in base alla necessità dell’acquirente.
La proprietà è dotata, in tutti i piani ed in tutti i locali, di ampie finestrature che regalano un panorama dominante sia sul fronte che sul retro con vista delle colline, del parco e della pianura.
Il parco di circa mq 8.000 è stato splendidamente piantumato e mantenuto nella sua originalità, è dotato di un ampio frutteto, piante secolari come magnolie ed un cedro del libano pluri secolare di 16 metri di altezza, giardino all’italiana, vialetti, aiole e panchine, irrigazione automatizzata, splendido pozzo originale ed illuminazione.
La proprietà si presta sia come importante abitazione privata singola o pluri familiare o anche come sede di rappresentanza o come struttura ricettiva di charme come albergo o location per eventi e matrimoni.
Trattative Riservate
CLASSE ENERGETICA: In attesa di certificazione energetica
maggiori informazioni ed il book fotografico possono essere consultati nella sezione VETRINA BERGAMO del sito
STUDIO IMMOBILIARE VALLE
Flaminia S.r.l.
Real estate and investments
24121 Bergamo – Italy
V.le Vitt. Emanuele II n. 65
tel +39 035 231588
WhatsApp: +39 3920190070
www.studio-valle.com
info@studio-valle.com
Facebook: StudioImmobiliareValle
Twitter: ValleRealEstate
Skype: Valle-Real-Estate
La presente scheda riveste unicamente carattere informativo e viene fornita ad un numero limitato di soggetti selezionati nel quadro dei servizi di consulenza immobiliare. I dati e le informazioni di seguito riportati sono strettamente riservati. Conseguentemente, al ricevimento del presente memorandum è fatto esplicito obbligo alle parti di mantenere il carattere confidenziale delle informazioni e dei dati riportati e di adottare tutte le misure e provvedimenti necessari per l’adempimento di detto obbligo. A seguito di potenziali manifestazioni in interesse, saranno rese disponibili tutte le ulteriori informazioni di dettaglio opportunamente verificate.
Ai sensi delle normative vigenti è vietata qualsiasi riproduzione e/o utilizzo da parte di terzi con qualsivoglia modalità. La presente scheda ed i dati in essa contenuti hanno uno scopo meramente informativo, non costituiscono offerta o forma di sollecitazione per l’acquisto o la vendita di qualsiasi forma di investimento o altro prodotto specifico. Sebbene le informazioni e le opinioni espresse o rappresentate nel presente documento siano state redatte con cura e buona fede, queste non possono considerarsi una garanzia riguardo la loro esattezza e completezza ed hanno natura di semplici consigli, non derivando allo Studio Immobiliare Valle – Flaminia S.r.l. alcuna responsabilità per perdite, danni o minori guadagni che dovessero derivare a seguito di operazioni che debbono comunque intendersi effettuate in piena autonomia gestionale da parte del cliente sulla base di informazioni ed opinioni espresse.
I contenuti del presente memorandum sia in formato fotografico, descrittivo ma anche informazioni orali, visive o trasmesse elettronicamente o con altri mezzi sono da ritenersi di proprietà unica di Studio Immobiliare Valle – Flaminia S.r.l. ed è vietato ogni utilizzo non espressamente autorizzato.
Le commissioni applicate da Studio Immobiliare Valle - Flaminia S.r.l. sono pari al 4 % + Iva sul valore di vendita per la compravendita immobiliare per acquirente / venitore ed il 15 % + Iva sul contratto di locazione annuale a regime per conduttore / locatore salvo differenti accordi preventivi
Questo sito utilizza diversi cookie tecnici per garantire il suo corretto funzionamento, oltre a cookie statistici, inclusi quelli forniti da terze parti. Se desideri negare il consenso all'uso dei cookie, puoi fare click sulla "X". In questo caso verranno mantenute le impostazioni predefinite e potrai continuare a navigare senza l'uso di cookie o di altri strumenti di tracciamento ad esclusione di quelli tecnici.
Se invece desideri accettare tutti i cookie, fai click su “Accetta Tutto”. Se preferisci selezionare autonomamente i cookie da accettare, fai click su "Personalizza". Se desideri ulteriori informazioni, consulta la nostra Privacy Policy.
Non acconsentire o ritirare il consenso può influire negativamente su alcune caratteristiche e funzioni di questo sito web.