– Бергамо _ улица Корридоны
Современные и престижные трехкомнатные апартаменты с террасой в новостройке класса энергопотребления А.
Новое здание расположено в особенно удобном месте, в нескольких шагах от всех услуг и магазинов, в нескольких минутах ходьбы, в нескольких шагах от парка Редона, а также в непосредственной близости от остановки легкого поезда Теб, который в нескольких минутах езды до центра города и железнодорожного вокзала, а также в непосредственной близости от выезда на автостраду и автостраду.
Здание спроектировано с учетом максимального комфорта и энергосбережения благодаря новейшим технологиям изоляции и высокоэффективным тепловым системам, звукопоглощающим материалам для большего акустического комфорта, благоустроенному пешеходному входу, большим светлым и просторным кондоминиумам и лифту из домов в жилые дома. подвальные этажи.
Доступность:
Пентхаус 18, четвертый этаж и мансарда: Квартира 58 кв.м плюс 63 кв.м террасы на четвертом этаже более 77 кв.м и 19 кв.м террасы на мансардном этаже внутренне должны быть спроектированы в соответствии с планировкой покупателя (возможна гостиная, кухня, 3 спальни, 3 ванные комнаты, террасы): 400 000,00 евро ПРОДАНО
Пентхаус 19, четвертый этаж и мансарда: Квартира 71 кв.м плюс 75 кв.м террасы на четвертом этаже более 84 кв.м и 23 кв.м террасы на мансардном этаже внутри, которая должна быть спроектирована в соответствии с планировкой покупателя (возможна гостиная, кухня, 3 спальни, 3 ванные комнаты, террасы): 470000,00 €
Пентхаус 20, четвертый этаж и мансарда: Квартира 87 кв.м плюс 103 кв.м террасы на четвертом этаже более 46 кв.м и 22 кв.м террасы на мансардном этаже внутренне должны быть спроектированы в соответствии с планировкой покупателя (возможна гостиная с 2 верандами , кухня, 3 спальни, 2 ванные комнаты, террасы): 500 000,00 €
Пентхаус 21, четвертый этаж и мансарда: Квартира площадью 48 кв.м плюс 19 кв.м террасы на четвертом этаже более 49 кв.м и 22 кв.м террасы на мансардном этаже внутренне должны быть спроектированы в соответствии с планировкой покупателя (возможна гостиная, кухня, 2 спальни, 2 ванные комнаты, террасы): 265 000,00 €
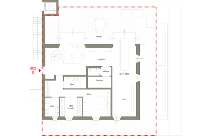
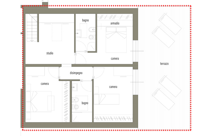
Пентхаус 22, четвертый этаж и мансарда: Квартира 135 кв.м плюс 122 кв.м терраса на четвертом этаже более 95 кв.м и терраса 44 кв.м на мансардном этаже внутренне должны быть спроектированы в соответствии с планировкой покупателя (возможна гостиная с верандой, кухня, столовая с верандой, дневная ванная комната с прачечной, главная спальня со спальней, ванной комнатой и гостиной / гардеробной, еще 3/4 спальни с дополнительными 2 ванными комнатами): 765 000,00 евро
Недвижимость в настоящее время находится в деревенском стиле, с роскошной отделкой и индивидуальным заказом, с подогревом и охлаждением полов с системой осушения, высокопроизводительной арматурой и изоляцией, системой отопления с частным тепловым насосом для каждой квартиры, подготовкой системы домашней автоматизации, моторизованными жалюзи, сигнализацией предрасположенность, предрасположенность индукционного плана.
В комплексе уже есть общие части, сдача квартир возможна в течении 12 месяцев с момента покупки.
Большие и удобные гаражи на две и три машины (а также подвалы) доступны по цене от € 40.000,00.
Энергоэффективность: A1 111,94 [Kwh/m²a]
Primabergamo Европейская директива по зеленому дому: https://primabergamo.it/tendenze/direttiva-europea-sulle-case-green-in-via-corridoni-nuove-abitazioni-proiettate-nel-futuro/
Дизайнер интерьера с мебелью Нусибелла доступен по согласованию с террасами улица Корридоны для индивидуальной мебели на заказ: http://www.arredamentinucibella.it/
Селла Банк по договору с с террасами улица Корридоны на беспроцентный зеленый кредит на первый год: https://www.sella.it/banca-on-line/privati/finanziamenti/mutui/mutuo-green
Агенство недвижимости Валле
Flaminia S.r.l.
Real estate and investments
24121 Бергамо — Италия
Через Виктор Эммануил II 65
Телефон (+39) 035 23 15 88
Факс (+39) 035 23 27 14
www.studio-valle.com
info@studio-valle.com
Facebook: StudioImmobiliareValle
Twitter: ValleRealEstate
Skype: Valle-Real-Estate
La presente scheda riveste unicamente carattere informativo e viene fornita ad un numero limitato di soggetti selezionati nel quadro dei servizi di consulenza immobiliare. I dati e le informazioni di seguito riportati sono strettamente riservati. Conseguentemente, al ricevimento del presente memorandum è fatto esplicito obbligo alle parti di mantenere il carattere confidenziale delle informazioni e dei dati riportati e di adottare tutte le misure e provvedimenti necessari per l’adempimento di detto obbligo. A seguito di potenziali manifestazioni in interesse, saranno rese disponibili tutte le ulteriori informazioni di dettaglio opportunamente verificate.
Ai sensi delle normative vigenti è vietata qualsiasi riproduzione e/o utilizzo da parte di terzi con qualsivoglia modalità. La presente scheda ed i dati in essa contenuti hanno uno scopo meramente informativo, non costituiscono offerta o forma di sollecitazione per l’acquisto o la vendita di qualsiasi forma di investimento o altro prodotto specifico. Sebbene le informazioni e le opinioni espresse o rappresentate nel presente documento siano state redatte con cura e buona fede, queste non possono considerarsi una garanzia riguardo la loro esattezza e completezza ed hanno natura di semplici consigli, non derivando allo Studio Immobiliare Valle – Flaminia S.r.l. alcuna responsabilità per perdite, danni o minori guadagni che dovessero derivare a seguito di operazioni che debbono comunque intendersi effettuate in piena autonomia gestionale da parte del cliente sulla base di informazioni ed opinioni espresse.
I contenuti del presente memorandum sia in formato fotografico, descrittivo ma anche informazioni orali, visive o trasmesse elettronicamente o con altri mezzi sono da ritenersi di proprietà unica di Studio Immobiliare Valle – Flaminia S.r.l. ed è vietato ogni utilizzo non espressamente autorizzato.
Le commissioni applicate da Studio Immobiliare Valle - Flaminia S.r.l. sono pari al 4 % + Iva sul valore di vendita per la compravendita immobiliare per acquirente / venitore ed il 15 % + Iva sul contratto di locazione annuale a regime per conduttore / locatore salvo differenti accordi preventivi
This site uses various technical cookies to ensure its proper functioning, as well as statistical cookies, including those provided by third parties. If you wish to refuse the use of cookies, you can click on the ‘X’. In this case the default settings will be retained and you will be able to continue browsing without the use of cookies or other tracking tools other than technical ones.
If you wish to accept all cookies, click on ‘Accept All’. If you prefer to select which cookies you want to accept, click on ‘Customise’. If you would like more information, please see our Privacy Policy.
Not accepting or withdrawing consent may adversely affect certain features and functions of this website.