– 贝尔加莫 中心 _ 圣卡特琳娜地区
优雅现代的55平方米一居室公寓,目前正在进行全面的能源改造,达到A1能效等级,并配备露台和车库。
该房产位于一栋配备电梯和共享花园的大楼一楼,地处一个私密的封闭式小型社区,地理位置优越,环境清幽。公寓靠近Borgo Santa Caterina街和Suardi街,步行即可到达所有便利设施、全新的Gamec艺术中心和Suardi公园。
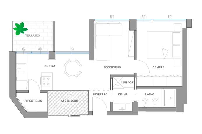
公寓内部包括一个大门厅、一个带大而明亮的窗户的电视室、一个可通往露台的厨房、一个衣柜和一个餐厅、一个双人卧室、一个带洗衣区的走廊和一间浴室。
该公寓正在进行全面翻新,能源效率升级计划于2026年初完成。所有装修和系统均采用顶级品质,目前均可定制,包括高性能隔热窗、电动百叶窗、空调、现代瓷砖或拼花地板、家庭自动化系统、报警系统、油漆和防盗门。公寓将根据规定安装新的管道和电气系统。此外,公寓将采用内涂层进行全面隔热,配备空气交换器,并可安装热泵空调系统,以达到A级能效。
公寓配备计量中央供暖系统、大窗户和充足的自然采光,开放式和双面窗户。
在翻新初期,空间和装修可进行广泛的定制。
可获得重组产生的税收抵免。
€ 209.000,00
楼内车库售价 € 25.000,00欧元
能源效率: A1
VALLE地产代理公司
Flaminia S.r.l.
Real estate and investments
24121贝尔加莫 – 意大利
通过维托里奥埃马努埃二、65
电话号码(+39) 035 23 15 88
WhatsApp: (+39) 3920190070
www.studio-valle.com
info@studio-valle.com
Facebook: StudioImmobiliareValle
Twitter: ValleRealEstate
Skype: Valle-Real-Estate
La presente scheda riveste unicamente carattere informativo e viene fornita ad un numero limitato di soggetti selezionati nel quadro dei servizi di consulenza immobiliare. I dati e le informazioni di seguito riportati sono strettamente riservati. Conseguentemente, al ricevimento del presente memorandum è fatto esplicito obbligo alle parti di mantenere il carattere confidenziale delle informazioni e dei dati riportati e di adottare tutte le misure e provvedimenti necessari per l’adempimento di detto obbligo. A seguito di potenziali manifestazioni in interesse, saranno rese disponibili tutte le ulteriori informazioni di dettaglio opportunamente verificate.
Ai sensi delle normative vigenti è vietata qualsiasi riproduzione e/o utilizzo da parte di terzi con qualsivoglia modalità. La presente scheda ed i dati in essa contenuti hanno uno scopo meramente informativo, non costituiscono offerta o forma di sollecitazione per l’acquisto o la vendita di qualsiasi forma di investimento o altro prodotto specifico. Sebbene le informazioni e le opinioni espresse o rappresentate nel presente documento siano state redatte con cura e buona fede, queste non possono considerarsi una garanzia riguardo la loro esattezza e completezza ed hanno natura di semplici consigli, non derivando allo Studio Immobiliare Valle – Flaminia S.r.l. alcuna responsabilità per perdite, danni o minori guadagni che dovessero derivare a seguito di operazioni che debbono comunque intendersi effettuate in piena autonomia gestionale da parte del cliente sulla base di informazioni ed opinioni espresse.
I contenuti del presente memorandum sia in formato fotografico, descrittivo ma anche informazioni orali, visive o trasmesse elettronicamente o con altri mezzi sono da ritenersi di proprietà unica di Studio Immobiliare Valle – Flaminia S.r.l. ed è vietato ogni utilizzo non espressamente autorizzato.
Le commissioni applicate da Studio Immobiliare Valle - Flaminia S.r.l. sono pari al 4 % + Iva sul valore di vendita per la compravendita immobiliare per acquirente / venitore ed il 15 % + Iva sul contratto di locazione annuale a regime per conduttore / locatore salvo differenti accordi preventivi
This site uses various technical cookies to ensure its proper functioning, as well as statistical cookies, including those provided by third parties. If you wish to refuse the use of cookies, you can click on the ‘X’. In this case the default settings will be retained and you will be able to continue browsing without the use of cookies or other tracking tools other than technical ones.
If you wish to accept all cookies, click on ‘Accept All’. If you prefer to select which cookies you want to accept, click on ‘Customise’. If you would like more information, please see our Privacy Policy.
Not accepting or withdrawing consent may adversely affect certain features and functions of this website.