– BERGAMO _ CENTRO STORICO PEDONALE
Elegante spazio commerciale di mq 95 dotato di 75 mq di soppalco e 2 grandi vetrine fronte strada di forte traffico e visibilità pedonale.
L’immobile si colloca in posizione centralissima all’interno della pregiata area commerciale pedonale del centro di Bergamo in posizione di massima visibilità e di grande afflusso commerciale, situato a pochi passi da 2 ampi autosilo per la clientela, a poche decine di metri da Piazza Pontida nonchè a pochi metri da tutte le attività professionali e commerciali del centro cittadino.
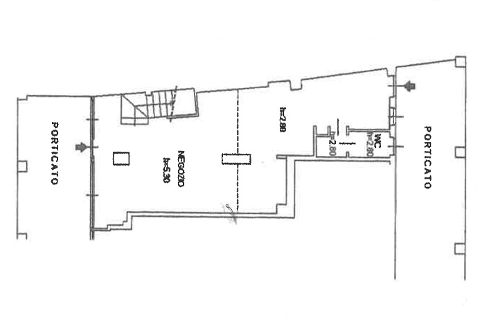
L’immobile è internamente composto da un’ampia zona negozio open space con area vendita a doppia altezza, 2 grandi vetrine fronte strada e secondo accesso di servizio dal retro, antibagno e bagno finestrato oltre area soppalcata e finestrata aperta sul piano terreno.
L’immobile è stato recentemente ristrutturato e si trova in ottime condizioni d’uso, dotato di ampia e comoda scala di accesso all’area soppalco con elegante balconata in vetro, pavimentazioni in moderno gres, controsoffittature con corpi illuminanti al piano terreno e strisce a led nel piano soppalco, riscaldamento autonomo.
Lo spazio si presta perfettamente per qualsiasi tipologia di attività commerciale o food leggero (no canna fumaria).
E’ inoltre possibile l’utilizzo di spazio esterno richiedendo le dovute autorizzazione alle autorità competenti.
€ 2.500,00 mensili
Spese condominiali € 1.000,00 annue.
CLASSE ENERGETICA: In attesa di certificazione energetica
STUDIO IMMOBILIARE VALLE
Flaminia S.r.l.
Real estate and investments
24121 Bergamo – Italy
V.le Vitt. Emanuele II n. 65
tel +39 035 231588
WhatsApp: +39 3920190070
www.studio-valle.com
info@studio-valle.com
Facebook: StudioImmobiliareValle
Twitter: ValleRealEstate
Skype: Valle-Real-Estate
La presente scheda riveste unicamente carattere informativo e viene fornita ad un numero limitato di soggetti selezionati nel quadro dei servizi di consulenza immobiliare. I dati e le informazioni di seguito riportati sono strettamente riservati. Conseguentemente, al ricevimento del presente memorandum è fatto esplicito obbligo alle parti di mantenere il carattere confidenziale delle informazioni e dei dati riportati e di adottare tutte le misure e provvedimenti necessari per l’adempimento di detto obbligo. A seguito di potenziali manifestazioni in interesse, saranno rese disponibili tutte le ulteriori informazioni di dettaglio opportunamente verificate.
Ai sensi delle normative vigenti è vietata qualsiasi riproduzione e/o utilizzo da parte di terzi con qualsivoglia modalità. La presente scheda ed i dati in essa contenuti hanno uno scopo meramente informativo, non costituiscono offerta o forma di sollecitazione per l’acquisto o la vendita di qualsiasi forma di investimento o altro prodotto specifico. Sebbene le informazioni e le opinioni espresse o rappresentate nel presente documento siano state redatte con cura e buona fede, queste non possono considerarsi una garanzia riguardo la loro esattezza e completezza ed hanno natura di semplici consigli, non derivando allo Studio Immobiliare Valle – Flaminia S.r.l. alcuna responsabilità per perdite, danni o minori guadagni che dovessero derivare a seguito di operazioni che debbono comunque intendersi effettuate in piena autonomia gestionale da parte del cliente sulla base di informazioni ed opinioni espresse.
I contenuti del presente memorandum sia in formato fotografico, descrittivo ma anche informazioni orali, visive o trasmesse elettronicamente o con altri mezzi sono da ritenersi di proprietà unica di Studio Immobiliare Valle – Flaminia S.r.l. ed è vietato ogni utilizzo non espressamente autorizzato.
Le commissioni applicate da Studio Immobiliare Valle - Flaminia S.r.l. sono pari al 4 % + Iva sul valore di vendita per la compravendita immobiliare per acquirente / venitore ed il 15 % + Iva sul contratto di locazione annuale a regime per conduttore / locatore salvo differenti accordi preventivi
Questo sito utilizza diversi cookie tecnici per garantire il suo corretto funzionamento, oltre a cookie statistici, inclusi quelli forniti da terze parti. Se desideri negare il consenso all'uso dei cookie, puoi fare click sulla "X". In questo caso verranno mantenute le impostazioni predefinite e potrai continuare a navigare senza l'uso di cookie o di altri strumenti di tracciamento ad esclusione di quelli tecnici.
Se invece desideri accettare tutti i cookie, fai click su “Accetta Tutto”. Se preferisci selezionare autonomamente i cookie da accettare, fai click su "Personalizza". Se desideri ulteriori informazioni, consulta la nostra Privacy Policy.
Non acconsentire o ritirare il consenso può influire negativamente su alcune caratteristiche e funzioni di questo sito web.