– BERGAMO SANTA LUCIA _ VIA STATUTO
Ampio ed elegante appartamento penta locale di mq 180 dotato di 100 mq di splendida terrazza, cantina e posti auto condominiali liberi.
Immobile completamente finemente ristrutturato situato al piano secondo di edificio molto signorile completamente e modernamente ristrutturato nelle parti comuni dotato di ascensore, ampia hall di ingresso con portierato ed ampio giardino condominiale sfruttabile, situato nel cuore di Santa Lucia a pochi passi dalla piazzetta e da tutti i servizi che il quartiere offre, a pochi passi dal tempio Votivo, dall’oratorio di Santa Lucia, dalle piscine, dalle scuole nonchè dal nuovo polo universitario e dal centro storico della città raggiungibile a piedi in 15 minuti.
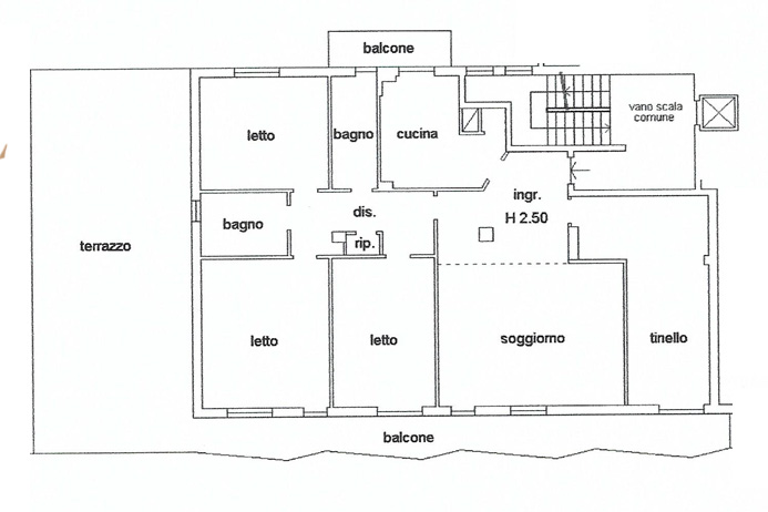
Internamente l’appartamento è composto da ampio ingresso, ampio salone con accesso al terrazzo, cucina abitabile con dispensa ed accesso al balcone di servizio, 4 camere da letto matrimoniali di cui 3 con accesso al terrazzo, 2 bagni finestrati, ripostiglio e grande terrazza di mq 100.
L’immobile è perfettamente rifinito dotato di pavimentazioni in parquet, infissi con doppio vetro performanti con tapparelle motorizzate in alluminio rinforzato, aria condizionata con pompa di calore caldo/freddo, riscaldamento centralizzato contabilizzato, impianto di allarme perimetrale e volumetrico, illuminazione a led in tutti gli ambienti, terrazzi in gres simil legno.
L’appartamento è molto luminoso grazie alle ampie finestre e porte finestre presenti nell’abitazioni inoltre è libero e finestrato su 3 lati, l’edificio è stato completamente ristrutturato nelle parti comuni sia per quanto concerne le facciate ed i balconi che per quanto concerne l’ascensore ed i vani scale condominiali, il tutto si presenta in perfetto stato d’uso e molto elegante, nel 2026 è previsto l’allaccio al tele riscaldamento.
L’immobile viene venduto comprensivo di parziale arredo della cucina con piano induzione, arredi bagni ed alcune armadiature.
Sono disponibili comodi posti auto condominiali interni non assegnati accessibili direttamente tramite ascensore dal piano interrato.
Spese condominiali € 3.400,00 annue compreso quota riscaldamento base escluso consumo riscaldamento.
€ 620.000,00
CLASSE ENERGETICA: E 158,52 [Kwh/m²a]
STUDIO IMMOBILIARE VALLE
Flaminia S.r.l.
Real estate and investments
24121 Bergamo – Italy
V.le Vitt. Emanuele II n. 65
tel +39 035 231588
WhatsApp: +39 3920190070
www.studio-valle.com
info@studio-valle.com
Facebook: StudioImmobiliareValle
Instagram: studio.immobiliare.valle
Tiktok: @studiovalle
X: ValleRealEstate
Skype: Valle-Real-Estate
La presente scheda riveste unicamente carattere informativo e viene fornita ad un numero limitato di soggetti selezionati nel quadro dei servizi di consulenza immobiliare. I dati e le informazioni di seguito riportati sono strettamente riservati. Conseguentemente, al ricevimento del presente memorandum è fatto esplicito obbligo alle parti di mantenere il carattere confidenziale delle informazioni e dei dati riportati e di adottare tutte le misure e provvedimenti necessari per l’adempimento di detto obbligo. A seguito di potenziali manifestazioni in interesse, saranno rese disponibili tutte le ulteriori informazioni di dettaglio opportunamente verificate.
Ai sensi delle normative vigenti è vietata qualsiasi riproduzione e/o utilizzo da parte di terzi con qualsivoglia modalità. La presente scheda ed i dati in essa contenuti hanno uno scopo meramente informativo, non costituiscono offerta o forma di sollecitazione per l’acquisto o la vendita di qualsiasi forma di investimento o altro prodotto specifico. Sebbene le informazioni e le opinioni espresse o rappresentate nel presente documento siano state redatte con cura e buona fede, queste non possono considerarsi una garanzia riguardo la loro esattezza e completezza ed hanno natura di semplici consigli, non derivando allo Studio Immobiliare Valle – Flaminia S.r.l. alcuna responsabilità per perdite, danni o minori guadagni che dovessero derivare a seguito di operazioni che debbono comunque intendersi effettuate in piena autonomia gestionale da parte del cliente sulla base di informazioni ed opinioni espresse.
I contenuti del presente memorandum sia in formato fotografico, descrittivo ma anche informazioni orali, visive o trasmesse elettronicamente o con altri mezzi sono da ritenersi di proprietà unica di Studio Immobiliare Valle – Flaminia S.r.l. ed è vietato ogni utilizzo non espressamente autorizzato.
Le commissioni applicate da Studio Immobiliare Valle - Flaminia S.r.l. sono pari al 4 % + Iva sul valore di vendita per la compravendita immobiliare per acquirente / venitore ed il 15 % + Iva sul contratto di locazione annuale a regime per conduttore / locatore salvo differenti accordi preventivi
Questo sito utilizza diversi cookie tecnici per garantire il suo corretto funzionamento, oltre a cookie statistici, inclusi quelli forniti da terze parti. Se desideri negare il consenso all'uso dei cookie, puoi fare click sulla "X". In questo caso verranno mantenute le impostazioni predefinite e potrai continuare a navigare senza l'uso di cookie o di altri strumenti di tracciamento ad esclusione di quelli tecnici.
Se invece desideri accettare tutti i cookie, fai click su “Accetta Tutto”. Se preferisci selezionare autonomamente i cookie da accettare, fai click su "Personalizza". Se desideri ulteriori informazioni, consulta la nostra Privacy Policy.
Non acconsentire o ritirare il consenso può influire negativamente su alcune caratteristiche e funzioni di questo sito web.