Бергамо центр

239.000,00
Rif: bgghisl55
Кв.м (m²)
55
Ванные
1
Гаражи
1
Спальни
1
Сад
Отсутствует
Лифт
если
Кухня
Совмещённая
ОПИСАНИЕ
 

– Бергамо центр _ Площадь Святой Анны

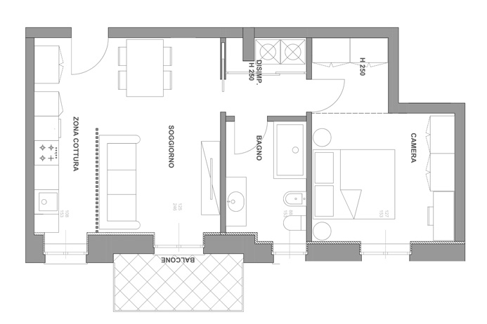
Элегантная квартира-пентхаус площадью 55 кв.м с одной спальней, в настоящее время проходящая полную энергетическую реконструкцию для достижения класса энергоэффективности A1, оборудована балконом и гаражом.

Квартира расположена на пятом, верхнем этаже элегантного здания с лифтом на частной улице, в очень удобном центральном месте, всего в нескольких шагах от площади Сант-Анна и главной улицы Борго Палаццо. Все услуги и магазины находятся в шаговой доступности. Удобный доступ к автомагистралям и шоссе, в пешей доступности от железнодорожного вокзала и всего в нескольких шагах от нового многофункционального центра Chorus Life.

Внутри квартира будет состоять из большой гостиной с кухонным уголком и выходом на балкон, прихожей с прачечной, спальни с двуспальной кроватью и большой ванной комнаты с окном.

Квартира проходит капитальный ремонт, завершение работ по повышению энергоэффективности запланировано на конец 2026 года. Отделка и инженерные системы будут высочайшего качества и в настоящее время могут быть адаптированы под конкретные потребности, включая высокоэффективные теплоизоляционные окна, автоматические жалюзи, возможность установки кондиционера, современный керамогранит или паркет, систему домашней автоматизации, сигнализацию, покраску и бронированную дверь. Будут установлены новые водопроводные и электротехнические системы в соответствии с нормами. Кроме того, квартира будет полностью утеплена внутренним слоем, оборудована воздухообменниками, и будет возможность установки теплового насоса для кондиционирования воздуха для достижения класса энергоэффективности А.

В квартире проводится полная реконструкция, завершение которой запланировано на лето 2026 года. Отделка и системы будут высшего качества и уже сейчас могут быть изменены по вашему желанию, включая высокоэффективные тепловые окна, автоматические ставни, возможность установки кондиционера, современный керамогранит или паркет, возможность установки системы домашней автоматизации, сигнализации, покраски и бронированной двери. Новые сантехнические и электрические системы будут установлены в соответствии с нормативами. Кроме того, недвижимость будет полностью утеплена внутренней обшивкой, оборудована воздухообменниками и возможностью установки теплового насоса для кондиционирования воздуха, что позволит достичь класса энергоэффективности А.

Существует широкая возможность настройки пространств и отделки на ранних стадиях реконструкции.

€ 239.000,00

Гараж в нескольких метрах от дома стоит € 38.000,00.

Возможно назначение налогового кредита в результате реструктуризации.

Недвижимость идеально подходит как для личного проживания, так и для инвестиций в надежный доход в высококачественном и престижном месте сдачи в аренду.

Энергоэффективность: A1

 

Агенство недвижимости Валле
Flaminia S.r.l.
Real estate and investments
24121 Бергамо — Италия
Через Виктор Эммануил II 65
Телефон (+39) 035 23 15 88
WhatsApp: (+39) 3920190070
www.studio-valle.com
info@studio-valle.com
Facebook: StudioImmobiliareValle
Instagram: studio.immobiliare.valle
X: ValleRealEstate
Skype: Valle-Real-Estate

ОСОБЕННОСТИ
Балкон - Гостиная - Кладовая
карта


La presente scheda riveste unicamente carattere informativo e viene fornita ad un numero limitato di soggetti selezionati nel quadro dei servizi di consulenza immobiliare. I dati e le informazioni di seguito riportati sono strettamente riservati. Conseguentemente, al ricevimento del presente memorandum è fatto esplicito obbligo alle parti di mantenere il carattere confidenziale delle informazioni e dei dati riportati e di adottare tutte le misure e provvedimenti necessari per l’adempimento di detto obbligo. A seguito di potenziali manifestazioni in interesse, saranno rese disponibili tutte le ulteriori informazioni di dettaglio opportunamente verificate.

Ai sensi delle normative vigenti è vietata qualsiasi riproduzione e/o utilizzo da parte di terzi con qualsivoglia modalità. La presente scheda ed i dati in essa contenuti hanno uno scopo meramente informativo, non costituiscono offerta o forma di sollecitazione per l’acquisto o la vendita di qualsiasi forma di investimento o altro prodotto specifico. Sebbene le informazioni e le opinioni espresse o rappresentate nel presente documento siano state redatte con cura e buona fede, queste non possono considerarsi una garanzia riguardo la loro esattezza e completezza ed hanno natura di semplici consigli, non derivando allo Studio Immobiliare Valle – Flaminia S.r.l. alcuna responsabilità per perdite, danni o minori guadagni che dovessero derivare a seguito di operazioni che debbono comunque intendersi effettuate in piena autonomia gestionale da parte del cliente sulla base di informazioni ed opinioni espresse.

I contenuti del presente memorandum sia in formato fotografico, descrittivo ma anche informazioni orali, visive o trasmesse elettronicamente o con altri mezzi sono da ritenersi di proprietà unica di Studio Immobiliare Valle – Flaminia S.r.l. ed è vietato ogni utilizzo non espressamente autorizzato.

Le commissioni applicate da Studio Immobiliare Valle - Flaminia S.r.l. sono pari al 4 % + Iva sul valore di vendita per la compravendita immobiliare per acquirente / venitore ed il 15 % + Iva sul contratto di locazione annuale a regime per conduttore / locatore salvo differenti accordi preventivi

КОНТАКТ
call-us

(+39) 035 231588

call-us

(+39) 3920190070