– Бергамо _ Редона
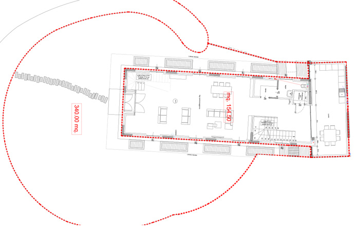
Престижный и современный отдельно стоящий таунхаус площадью 450 кв.м, с собственным садом площадью 360 кв.м и большим гаражом на четыре машины площадью 60 кв.м, соединенным с основным зданием.
Недвижимость расположена в роскошном новом жилом комплексе, в частности, в реконструированном здании старинного монастыря XVII века, в тихом парке Редона.
Комплекс находится на территории большого частного кондоминиумного парка, в парке Турани в Редоне, в нескольких минутах от центра Бергамо, в шаговой доступности от всех необходимых услуг, но при этом полностью окружен природой, искусно и современно благоустроенной.
Недвижимость включает в себя:
На первом этаже: отдельный вход, величественная гостиная площадью около 100 кв. м с окнами, выходящими на солнечную сторону с трех сторон, выход в частный сад, гардеробная, ванная комната, большая кухня площадью около 35 кв. м, отдельный лифт и внутренняя лестница.
На втором этаже: прихожая, большая главная спальня с окнами с трех сторон, просторная гардеробная и ванная комната с окном, вторая очень просторная спальня с двуспальной кроватью и ванной комнатой с окном, а также две дополнительные большие спальни, обслуживаемые еще одной ванной комнатой с окном.
В цокольном этаже, соединенном внутренней лестницей и отдельным внутренним лифтом (обслуживающим все этажи дома), находится большая комната с окнами, большая прачечная/гладильная зона, подвал, дополнительная ванная комната и большой гараж на четыре машины с прямым доступом в дом.
В настоящее время дом расположен в престижном районе, и вы можете выбрать высококачественную отделку по выгодной цене. Дом оборудован подогревом пола, возможностью установки кондиционера и сигнализации, большими окнами и всеми современными удобствами.
Абсолютно эксклюзивный курорт.
€ 1.300.000,00
Плата за обслуживание кондоминиума составляет € 2.000,00 в год, включая уход за садом.
Энергоэффективность: B 32,80 [Kwh/m²a]
Дополнительная информация и фотографическая книга будет способна консультироваться в Бергамо Витрина секции по веб-сайта
Агенство недвижимости Валле
Flaminia S.r.l.
Real estate and investments
24121 Бергамо — Италия
Через Виктор Эммануил II 65
Телефон (+39) 035 23 15 88
Факс (+39) 035 23 27 14
www.studio-valle.com
info@studio-valle.com
Facebook: StudioImmobiliareValle
Twitter: ValleRealEstate
Skype: Valle-Real-Estate
La presente scheda riveste unicamente carattere informativo e viene fornita ad un numero limitato di soggetti selezionati nel quadro dei servizi di consulenza immobiliare. I dati e le informazioni di seguito riportati sono strettamente riservati. Conseguentemente, al ricevimento del presente memorandum è fatto esplicito obbligo alle parti di mantenere il carattere confidenziale delle informazioni e dei dati riportati e di adottare tutte le misure e provvedimenti necessari per l’adempimento di detto obbligo. A seguito di potenziali manifestazioni in interesse, saranno rese disponibili tutte le ulteriori informazioni di dettaglio opportunamente verificate.
Ai sensi delle normative vigenti è vietata qualsiasi riproduzione e/o utilizzo da parte di terzi con qualsivoglia modalità. La presente scheda ed i dati in essa contenuti hanno uno scopo meramente informativo, non costituiscono offerta o forma di sollecitazione per l’acquisto o la vendita di qualsiasi forma di investimento o altro prodotto specifico. Sebbene le informazioni e le opinioni espresse o rappresentate nel presente documento siano state redatte con cura e buona fede, queste non possono considerarsi una garanzia riguardo la loro esattezza e completezza ed hanno natura di semplici consigli, non derivando allo Studio Immobiliare Valle – Flaminia S.r.l. alcuna responsabilità per perdite, danni o minori guadagni che dovessero derivare a seguito di operazioni che debbono comunque intendersi effettuate in piena autonomia gestionale da parte del cliente sulla base di informazioni ed opinioni espresse.
I contenuti del presente memorandum sia in formato fotografico, descrittivo ma anche informazioni orali, visive o trasmesse elettronicamente o con altri mezzi sono da ritenersi di proprietà unica di Studio Immobiliare Valle – Flaminia S.r.l. ed è vietato ogni utilizzo non espressamente autorizzato.
Le commissioni applicate da Studio Immobiliare Valle - Flaminia S.r.l. sono pari al 4 % + Iva sul valore di vendita per la compravendita immobiliare per acquirente / venitore ed il 15 % + Iva sul contratto di locazione annuale a regime per conduttore / locatore salvo differenti accordi preventivi
This site uses various technical cookies to ensure its proper functioning, as well as statistical cookies, including those provided by third parties. If you wish to refuse the use of cookies, you can click on the ‘X’. In this case the default settings will be retained and you will be able to continue browsing without the use of cookies or other tracking tools other than technical ones.
If you wish to accept all cookies, click on ‘Accept All’. If you prefer to select which cookies you want to accept, click on ‘Customise’. If you would like more information, please see our Privacy Policy.
Not accepting or withdrawing consent may adversely affect certain features and functions of this website.