– Бергамо _ улица Корридоны
Современная двухкомнатная квартира площадью 70 кв.м в новом здании энергетического класса А1, с прихожей 55 кв.м, частным садом 190 кв.м, подвалом и гаражом.
Квартира расположена на первом этаже нового здания в очень удобном месте, в нескольких шагах от всех необходимых услуг и магазинов, в шаговой доступности от парка Редона, а также в непосредственной близости от остановки скоростного трамвая Teb, который за несколько минут доставит вас в центр города и на железнодорожный вокзал, а также в непосредственной близости от въезда на автомагистраль и скоростную дорогу. Также в нескольких шагах находится новый многофункциональный центр Chorus Life, где вы найдете магазины, рестораны, оздоровительный центр, новую спортивно-развлекательную арену Бергамо, пешеходные и беговые дорожки.
Здание спроектировано для максимального комфорта и энергосбережения благодаря новейшим технологиям теплоизоляции и высокоэффективным теплоизоляционным системам, звукопоглощающим материалам для повышения акустического комфорта, благоустроенному пешеходному входу, большим светлым и просторным жилым помещениям и лифту из квартир на цокольные этажи.
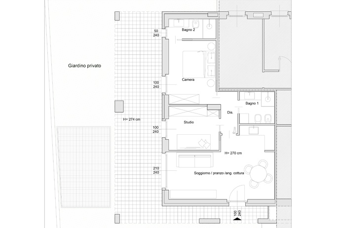
Внутри квартира будет включать в себя вход через большую прихожую, гостиную с кухонным уголком и выходом на прихожую, коридор, главную спальню с выходом на прихожую и ванной комнатой, кабинет с выходом на прихожую и вторую ванную комнату с прачечной.
Объект недвижимости будет сдан в роскошном, отделанном и индивидуальном стиле, с подогревом пола с воздуховодами для осушения и охлаждения, высокоэффективной сантехникой и теплоизоляцией, индивидуальным тепловым насосом для каждой квартиры, автоматическими жалюзи, системой сигнализации, возможностью установки индукционной плиты, высококачественным керамогранитом или паркетным полом, бронированной дверью и свежей покраской.
Комплекс уже завершен в общих зонах.
Также имеется отдельный вход на первом этаже без архитектурных барьеров.
В продаже имеются просторные и удобные двойные гаражи по цене € 42.000,00 каждый.
Сдача объекта в конце 2026 года.
€ 240.000,00 готово.
Недвижимость идеально подходит как для личного проживания, так и для инвестиций в надежный доход в высококачественном и престижном месте сдачи в аренду.
Энергоэффективность: A1 111,94 [Kwh/m²a]
Агенство недвижимости Валле
Flaminia S.r.l.
Real estate and investments
24121 Бергамо — Италия
Через Виктор Эммануил II 65
Телефон (+39) 035 23 15 88
WhatsApp: (+39) 3920190070
www.studio-valle.com
info@studio-valle.com
Facebook: StudioImmobiliareValle
Instagram: studio.immobiliare.valle
Tiktok: @studiovalle
X: ValleRealEstate
Skype: Valle-Real-Estate
La presente scheda riveste unicamente carattere informativo e viene fornita ad un numero limitato di soggetti selezionati nel quadro dei servizi di consulenza immobiliare. I dati e le informazioni di seguito riportati sono strettamente riservati. Conseguentemente, al ricevimento del presente memorandum è fatto esplicito obbligo alle parti di mantenere il carattere confidenziale delle informazioni e dei dati riportati e di adottare tutte le misure e provvedimenti necessari per l’adempimento di detto obbligo. A seguito di potenziali manifestazioni in interesse, saranno rese disponibili tutte le ulteriori informazioni di dettaglio opportunamente verificate.
Ai sensi delle normative vigenti è vietata qualsiasi riproduzione e/o utilizzo da parte di terzi con qualsivoglia modalità. La presente scheda ed i dati in essa contenuti hanno uno scopo meramente informativo, non costituiscono offerta o forma di sollecitazione per l’acquisto o la vendita di qualsiasi forma di investimento o altro prodotto specifico. Sebbene le informazioni e le opinioni espresse o rappresentate nel presente documento siano state redatte con cura e buona fede, queste non possono considerarsi una garanzia riguardo la loro esattezza e completezza ed hanno natura di semplici consigli, non derivando allo Studio Immobiliare Valle – Flaminia S.r.l. alcuna responsabilità per perdite, danni o minori guadagni che dovessero derivare a seguito di operazioni che debbono comunque intendersi effettuate in piena autonomia gestionale da parte del cliente sulla base di informazioni ed opinioni espresse.
I contenuti del presente memorandum sia in formato fotografico, descrittivo ma anche informazioni orali, visive o trasmesse elettronicamente o con altri mezzi sono da ritenersi di proprietà unica di Studio Immobiliare Valle – Flaminia S.r.l. ed è vietato ogni utilizzo non espressamente autorizzato.
Le commissioni applicate da Studio Immobiliare Valle - Flaminia S.r.l. sono pari al 4 % + Iva sul valore di vendita per la compravendita immobiliare per acquirente / venitore ed il 15 % + Iva sul contratto di locazione annuale a regime per conduttore / locatore salvo differenti accordi preventivi
This site uses various technical cookies to ensure its proper functioning, as well as statistical cookies, including those provided by third parties. If you wish to refuse the use of cookies, you can click on the ‘X’. In this case the default settings will be retained and you will be able to continue browsing without the use of cookies or other tracking tools other than technical ones.
If you wish to accept all cookies, click on ‘Accept All’. If you prefer to select which cookies you want to accept, click on ‘Customise’. If you would like more information, please see our Privacy Policy.
Not accepting or withdrawing consent may adversely affect certain features and functions of this website.