– 贝加莫中心
这间优雅的 35 平方米单间公寓目前正在进行全面翻新,以达到 A1 级能效标准,拥有开阔的视野,并配有车库。
公寓位于一栋优雅建筑的三楼,大楼配备电梯、礼宾服务和共享公园。地理位置优越,步行即可到达圣托马索街、卡拉拉学院、博尔戈圣卡特琳娜街和皮尼奥洛街。此外,公寓靠近苏阿尔迪公园和新建的Gamec当代艺术画廊。所有生活设施和商店均在步行范围内,交通便利,可轻松前往高速公路和快速路,步行10分钟即可到达火车站。
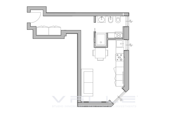
公寓内部包括一个带衣柜的入口大厅、一个带卧室和厨房的大起居室,以及一个带窗户和洗衣区的大浴室。
该公寓正在进行全面翻新,节能升级预计将于2026年底完成。装修和系统将采用顶级品质,目前可根据客户需求定制,包括高性能隔热窗、电动百叶窗、空调预留接口、现代石材或实木地板、智能家居系统预留接口、报警系统、油漆和安全门。新的管道和电气系统将按照相关规定安装。此外,房屋将进行全面的内墙隔热,配备空气交换器,并可安装热泵空调,以达到A级能效标准。
在装修的早期阶段,可以广泛定制空间和装修。
€ 129.000,00
大楼内有车库可供出租,价格为 29.000,00 欧元。
可分配重组产生的税收抵免。
该物业既适合作为个人住宅,也适合在高品质和主要租赁地点获得稳定收入的投资。
能源效率: A1
VALLE地产代理公司
Flaminia S.r.l.
Real estate and investments
24121贝尔加莫 – 意大利
通过维托里奥埃马努埃二、65
电话号码(+39) 035 23 15 88
WhatsApp: (+39) 3920190070
www.studio-valle.com
info@studio-valle.com
Facebook: StudioImmobiliareValle
Instagram: studio.immobiliare.valle
Tiktok: @studiovalle
X: ValleRealEstate
Skype: Valle-Real-Estate
La presente scheda riveste unicamente carattere informativo e viene fornita ad un numero limitato di soggetti selezionati nel quadro dei servizi di consulenza immobiliare. I dati e le informazioni di seguito riportati sono strettamente riservati. Conseguentemente, al ricevimento del presente memorandum è fatto esplicito obbligo alle parti di mantenere il carattere confidenziale delle informazioni e dei dati riportati e di adottare tutte le misure e provvedimenti necessari per l’adempimento di detto obbligo. A seguito di potenziali manifestazioni in interesse, saranno rese disponibili tutte le ulteriori informazioni di dettaglio opportunamente verificate.
Ai sensi delle normative vigenti è vietata qualsiasi riproduzione e/o utilizzo da parte di terzi con qualsivoglia modalità. La presente scheda ed i dati in essa contenuti hanno uno scopo meramente informativo, non costituiscono offerta o forma di sollecitazione per l’acquisto o la vendita di qualsiasi forma di investimento o altro prodotto specifico. Sebbene le informazioni e le opinioni espresse o rappresentate nel presente documento siano state redatte con cura e buona fede, queste non possono considerarsi una garanzia riguardo la loro esattezza e completezza ed hanno natura di semplici consigli, non derivando allo Studio Immobiliare Valle – Flaminia S.r.l. alcuna responsabilità per perdite, danni o minori guadagni che dovessero derivare a seguito di operazioni che debbono comunque intendersi effettuate in piena autonomia gestionale da parte del cliente sulla base di informazioni ed opinioni espresse.
I contenuti del presente memorandum sia in formato fotografico, descrittivo ma anche informazioni orali, visive o trasmesse elettronicamente o con altri mezzi sono da ritenersi di proprietà unica di Studio Immobiliare Valle – Flaminia S.r.l. ed è vietato ogni utilizzo non espressamente autorizzato.
Le commissioni applicate da Studio Immobiliare Valle - Flaminia S.r.l. sono pari al 4 % + Iva sul valore di vendita per la compravendita immobiliare per acquirente / venitore ed il 15 % + Iva sul contratto di locazione annuale a regime per conduttore / locatore salvo differenti accordi preventivi
This site uses various technical cookies to ensure its proper functioning, as well as statistical cookies, including those provided by third parties. If you wish to refuse the use of cookies, you can click on the ‘X’. In this case the default settings will be retained and you will be able to continue browsing without the use of cookies or other tracking tools other than technical ones.
If you wish to accept all cookies, click on ‘Accept All’. If you prefer to select which cookies you want to accept, click on ‘Customise’. If you would like more information, please see our Privacy Policy.
Not accepting or withdrawing consent may adversely affect certain features and functions of this website.