– 贝尔加莫 _ 中心
这套优雅现代的两居室公寓面积90平方米,配备110平方米的私人花园和双车位车库。
该公寓位于一栋享有盛誉的历史建筑的一楼,内部装修一应俱全,地理位置优越,位于市中心,距离贝加莫步行购物区仅几步之遥,前往市中心所有便利设施十分便捷,步行即可到达火车站。
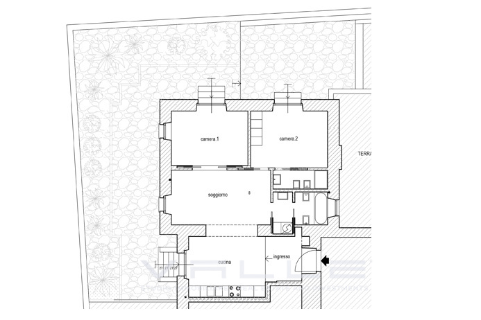
公寓内部布局包括:宽敞的门厅(带夹层)、设备齐全的厨房、客厅、带嵌入式衣柜的主卧、带淋浴的浴室、次卧以及带浴缸的浴室。
公寓已全面翻新,配备计量中央供暖系统、带热泵的空调、电动百叶窗、防盗报警系统、现代大尺寸石材地板,以及裸露铁梁、格状天花板和带漫射照明的吊顶等设计细节。
公寓出租时包含厨房家具和衣柜,也可选择全套家具(租金另行调整)。
公寓包含一个大型双车位车库。
每月租金 2,500 欧元,无固定税率。
公寓管理费每年 1,900 欧元。
禁止饲养宠物。
禁止短租。
2026 年 6 月 1 日起可入住。
能源效率: 能源认证暂挂
VALLE地产代理公司
Flaminia S.r.l.
Real estate and investments
24121贝尔加莫 – 意大利
通过维托里奥埃马努埃二、65
电话号码(+39) 035 23 15 88
WhatsApp: (+39) 3920190070
www.studio-valle.com
info@studio-valle.com
Facebook: StudioImmobiliareValle
Instagram: studio.immobiliare.valle
Tiktok: @studiovalle
X: ValleRealEstate
Skype: Valle-Real-Estate
La presente scheda riveste unicamente carattere informativo e viene fornita ad un numero limitato di soggetti selezionati nel quadro dei servizi di consulenza immobiliare. I dati e le informazioni di seguito riportati sono strettamente riservati. Conseguentemente, al ricevimento del presente memorandum è fatto esplicito obbligo alle parti di mantenere il carattere confidenziale delle informazioni e dei dati riportati e di adottare tutte le misure e provvedimenti necessari per l’adempimento di detto obbligo. A seguito di potenziali manifestazioni in interesse, saranno rese disponibili tutte le ulteriori informazioni di dettaglio opportunamente verificate.
Ai sensi delle normative vigenti è vietata qualsiasi riproduzione e/o utilizzo da parte di terzi con qualsivoglia modalità. La presente scheda ed i dati in essa contenuti hanno uno scopo meramente informativo, non costituiscono offerta o forma di sollecitazione per l’acquisto o la vendita di qualsiasi forma di investimento o altro prodotto specifico. Sebbene le informazioni e le opinioni espresse o rappresentate nel presente documento siano state redatte con cura e buona fede, queste non possono considerarsi una garanzia riguardo la loro esattezza e completezza ed hanno natura di semplici consigli, non derivando allo Studio Immobiliare Valle – Flaminia S.r.l. alcuna responsabilità per perdite, danni o minori guadagni che dovessero derivare a seguito di operazioni che debbono comunque intendersi effettuate in piena autonomia gestionale da parte del cliente sulla base di informazioni ed opinioni espresse.
I contenuti del presente memorandum sia in formato fotografico, descrittivo ma anche informazioni orali, visive o trasmesse elettronicamente o con altri mezzi sono da ritenersi di proprietà unica di Studio Immobiliare Valle – Flaminia S.r.l. ed è vietato ogni utilizzo non espressamente autorizzato.
Le commissioni applicate da Studio Immobiliare Valle - Flaminia S.r.l. sono pari al 4 % + Iva sul valore di vendita per la compravendita immobiliare per acquirente / venitore ed il 15 % + Iva sul contratto di locazione annuale a regime per conduttore / locatore salvo differenti accordi preventivi
This site uses various technical cookies to ensure its proper functioning, as well as statistical cookies, including those provided by third parties. If you wish to refuse the use of cookies, you can click on the ‘X’. In this case the default settings will be retained and you will be able to continue browsing without the use of cookies or other tracking tools other than technical ones.
If you wish to accept all cookies, click on ‘Accept All’. If you prefer to select which cookies you want to accept, click on ‘Customise’. If you would like more information, please see our Privacy Policy.
Not accepting or withdrawing consent may adversely affect certain features and functions of this website.