– Osio Sotto
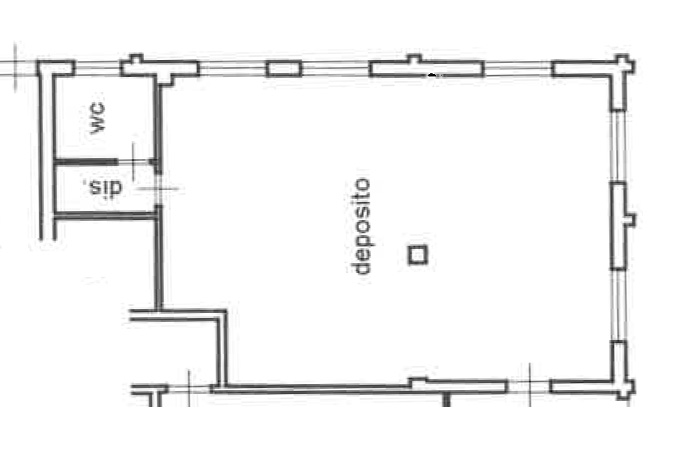
71平方米的仓库/工作室位于一楼,带17平方米的车库。
该物业地理位置优越,距贝加莫仅20分钟车程,距卡普里亚特高速公路出口5分钟车程,距达尔米内出口10分钟车程。它位于一栋小型住宅楼的一楼,该住宅楼状况良好,设有独立入口(毗邻公寓入口)、位于同一楼层的地上车库以及宽敞的共享装卸区。
该物业为开放式空间,拥有充足的窗户和一个带窗户的浴室。
该物业状况极佳,铺设瓷砖地板,配备独立供暖系统(锅炉和散热器)、电气系统和照明设备、安全门和PVC窗户,内部层高2.55米。
车库位于一楼,距离工作室/仓库仅几米之遥,可通过宽敞的共享车道和装卸区轻松进出。如有需要,车库门可直接通往庭院。
该物业非常适合用作仓库或工匠工作室,也适合其他商业用途,配有车库,方便停放货车和装卸货物。
€ 50.000,00
物业管理费每年 500.00 欧元。
能源效率: 建立不受这项义务的能源效率认证
VALLE地产代理公司
Flaminia S.r.l.
Real estate and investments
24121贝尔加莫 – 意大利
通过维托里奥埃马努埃二、65
电话号码(+39) 035 23 15 88
WhatsApp: (+39) 3920190070
www.studio-valle.com
info@studio-valle.com
Facebook: StudioImmobiliareValle
Instagram: studio.immobiliare.valle
X: ValleRealEstate
Skype: Valle-Real-Estate
La presente scheda riveste unicamente carattere informativo e viene fornita ad un numero limitato di soggetti selezionati nel quadro dei servizi di consulenza immobiliare. I dati e le informazioni di seguito riportati sono strettamente riservati. Conseguentemente, al ricevimento del presente memorandum è fatto esplicito obbligo alle parti di mantenere il carattere confidenziale delle informazioni e dei dati riportati e di adottare tutte le misure e provvedimenti necessari per l’adempimento di detto obbligo. A seguito di potenziali manifestazioni in interesse, saranno rese disponibili tutte le ulteriori informazioni di dettaglio opportunamente verificate.
Ai sensi delle normative vigenti è vietata qualsiasi riproduzione e/o utilizzo da parte di terzi con qualsivoglia modalità. La presente scheda ed i dati in essa contenuti hanno uno scopo meramente informativo, non costituiscono offerta o forma di sollecitazione per l’acquisto o la vendita di qualsiasi forma di investimento o altro prodotto specifico. Sebbene le informazioni e le opinioni espresse o rappresentate nel presente documento siano state redatte con cura e buona fede, queste non possono considerarsi una garanzia riguardo la loro esattezza e completezza ed hanno natura di semplici consigli, non derivando allo Studio Immobiliare Valle – Flaminia S.r.l. alcuna responsabilità per perdite, danni o minori guadagni che dovessero derivare a seguito di operazioni che debbono comunque intendersi effettuate in piena autonomia gestionale da parte del cliente sulla base di informazioni ed opinioni espresse.
I contenuti del presente memorandum sia in formato fotografico, descrittivo ma anche informazioni orali, visive o trasmesse elettronicamente o con altri mezzi sono da ritenersi di proprietà unica di Studio Immobiliare Valle – Flaminia S.r.l. ed è vietato ogni utilizzo non espressamente autorizzato.
Le commissioni applicate da Studio Immobiliare Valle - Flaminia S.r.l. sono pari al 4 % + Iva sul valore di vendita per la compravendita immobiliare per acquirente / venitore ed il 15 % + Iva sul contratto di locazione annuale a regime per conduttore / locatore salvo differenti accordi preventivi
This site uses various technical cookies to ensure its proper functioning, as well as statistical cookies, including those provided by third parties. If you wish to refuse the use of cookies, you can click on the ‘X’. In this case the default settings will be retained and you will be able to continue browsing without the use of cookies or other tracking tools other than technical ones.
If you wish to accept all cookies, click on ‘Accept All’. If you prefer to select which cookies you want to accept, click on ‘Customise’. If you would like more information, please see our Privacy Policy.
Not accepting or withdrawing consent may adversely affect certain features and functions of this website.