– BERGAMO CENTER
Modern and panoramic two bedrooms apartment of 65 sqm equipped with 50 sqm terrace, large garage and a cellar in a energy-class B recent building.
The property is located on the fourth floor of a modern, contemporary-design building constructed in 2012, featuring a double elevator, large shared entrance and a shared garden it is located just steps from Papa Giovanni XXIII street and the historic centers of Borgo Pignolo and Borgo Palazzo with all amenities and shops within walking distance, itis also just steps from the Bergamo train station, particularly convenient for the highway junction and the motorway which can be reached in just a few minutes.
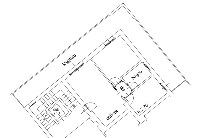
The property comprises living room with an open-plan kitchen and access to the large terrace, hallway, master bedroom with access to the terrace, bathroom with a window and shower and a second bedroom with access to the terrace.
The apartment is in perfect condition, featuring underfloor heating and cooling, large thermally insulated French windows with access to the terrace, parquet flooring and modern stoneware in the bathroom, motorized shutters with mosquito nets and all the latest amenities, the terrace is fully covered and equipped with automatic irrigation and high-quality electric awnings.
The property is located in an internal position and is undisturbed throughout the day, from the terrace, you can admire a splendid view of the mountains surrounding Bergamo, it also overlooks a historic park, making the outdoor space even more enjoyable for al fresco lunches and dinners or terrace parties.
The property also includes a large 8 sqm cellar and a spacious 21 sqm garage which can easily accommodate large vehicles, bicycles and storage space.
€ 325.000,00
Condominium fees € 2.300,00 per year including heating (accounted and variable based on usage), cold water and hot water.
Available November 2026.
ENERGY EFFICIENCY: B 40,98 [Kwh/m²a]
VALLE REAL ESTATE
Flaminia S.r.l.
Real estate and investments
24121 Bergamo – Italy
V.le Vitt. Emanuele II n. 65
Ph. +39 035 231588
WhatsApp: +39 3920190070
www.studio-valle.com
info@studio-valle.com
Facebook: StudioImmobiliareValle
Twitter: ValleRealEstate
Skype: Valle-Real-Estate
La presente scheda riveste unicamente carattere informativo e viene fornita ad un numero limitato di soggetti selezionati nel quadro dei servizi di consulenza immobiliare. I dati e le informazioni di seguito riportati sono strettamente riservati. Conseguentemente, al ricevimento del presente memorandum è fatto esplicito obbligo alle parti di mantenere il carattere confidenziale delle informazioni e dei dati riportati e di adottare tutte le misure e provvedimenti necessari per l’adempimento di detto obbligo. A seguito di potenziali manifestazioni in interesse, saranno rese disponibili tutte le ulteriori informazioni di dettaglio opportunamente verificate.
Ai sensi delle normative vigenti è vietata qualsiasi riproduzione e/o utilizzo da parte di terzi con qualsivoglia modalità. La presente scheda ed i dati in essa contenuti hanno uno scopo meramente informativo, non costituiscono offerta o forma di sollecitazione per l’acquisto o la vendita di qualsiasi forma di investimento o altro prodotto specifico. Sebbene le informazioni e le opinioni espresse o rappresentate nel presente documento siano state redatte con cura e buona fede, queste non possono considerarsi una garanzia riguardo la loro esattezza e completezza ed hanno natura di semplici consigli, non derivando allo Studio Immobiliare Valle – Flaminia S.r.l. alcuna responsabilità per perdite, danni o minori guadagni che dovessero derivare a seguito di operazioni che debbono comunque intendersi effettuate in piena autonomia gestionale da parte del cliente sulla base di informazioni ed opinioni espresse.
I contenuti del presente memorandum sia in formato fotografico, descrittivo ma anche informazioni orali, visive o trasmesse elettronicamente o con altri mezzi sono da ritenersi di proprietà unica di Studio Immobiliare Valle – Flaminia S.r.l. ed è vietato ogni utilizzo non espressamente autorizzato.
Le commissioni applicate da Studio Immobiliare Valle - Flaminia S.r.l. sono pari al 4 % + Iva sul valore di vendita per la compravendita immobiliare per acquirente / venitore ed il 15 % + Iva sul contratto di locazione annuale a regime per conduttore / locatore salvo differenti accordi preventivi
This site uses various technical cookies to ensure its proper functioning, as well as statistical cookies, including those provided by third parties. If you wish to refuse the use of cookies, you can click on the ‘X’. In this case the default settings will be retained and you will be able to continue browsing without the use of cookies or other tracking tools other than technical ones.
If you wish to accept all cookies, click on ‘Accept All’. If you prefer to select which cookies you want to accept, click on ‘Customise’. If you would like more information, please see our Privacy Policy.
Not accepting or withdrawing consent may adversely affect certain features and functions of this website.