– BERGAMO CENTER
Elegant and modern 44 sqm loft currently undergoing complete renovation to achieve energy efficiency class A1, featuring panoramic windows and available garage.
The property is located on the first floor of an elegant building equipped with an elevator, centrally located just steps from Papa Giovanni XXIII street, XX Settembre street and the Sentierone, all amenities and shops are within walking distance, convenient for accessing the highway and motorway, as well as walking to the train station.
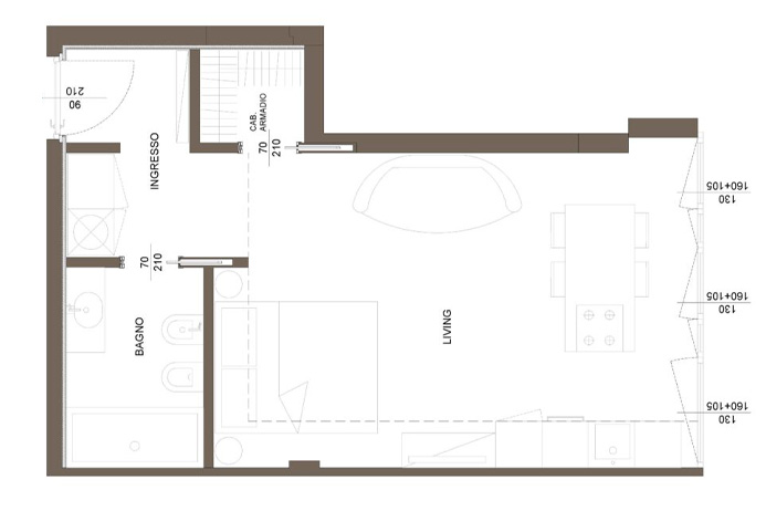
Internally the apartment will consist of a large entrance hall with laundry area, walk-in closet, bathroom and a single large open-plan area with an island kitchen and a large, bright panoramic window.
The apartment is undergoing a complete renovation, with energy efficiency upgrades scheduled for completion in spring 2026. The finishes and systems will be top quality and currently customizable, including high performance thermal windows, motorized shutters, provision for air conditioning, modern stoneware or parquet flooring, provision for a home automation system, alarm system, painting, and a security door, new plumbing and electrical systems will be installed in compliance with the regulations, furthermore, the property will be fully insulated with internal coat, equipped with air exchangers, and the possibility of installing a heat pump for air conditioning to achieve energy efficiency class A.
€ 225.000,00
Double garage available inside the building for € 89.000,00
The assignment of the tax credit resulting from the restructuring is available.
The property is perfect both as a personal home as an investment for a secure income in a high quality and prime rental location.
ENERGY EFFICIENCY: A1
VALLE REAL ESTATE
Flaminia S.r.l.
Real estate and investments
24121 Bergamo – Italy
V.le Vitt. Emanuele II n. 65
Ph. +39 035 231588
WhatsApp: +39 3920190070
www.studio-valle.com
info@studio-valle.com
Facebook: StudioImmobiliareValle
Instagram: studio.immobiliare.valle
Tiktok: @studiovalle
X: ValleRealEstate
Skype: Valle-Real-Estate
La presente scheda riveste unicamente carattere informativo e viene fornita ad un numero limitato di soggetti selezionati nel quadro dei servizi di consulenza immobiliare. I dati e le informazioni di seguito riportati sono strettamente riservati. Conseguentemente, al ricevimento del presente memorandum è fatto esplicito obbligo alle parti di mantenere il carattere confidenziale delle informazioni e dei dati riportati e di adottare tutte le misure e provvedimenti necessari per l’adempimento di detto obbligo. A seguito di potenziali manifestazioni in interesse, saranno rese disponibili tutte le ulteriori informazioni di dettaglio opportunamente verificate.
Ai sensi delle normative vigenti è vietata qualsiasi riproduzione e/o utilizzo da parte di terzi con qualsivoglia modalità. La presente scheda ed i dati in essa contenuti hanno uno scopo meramente informativo, non costituiscono offerta o forma di sollecitazione per l’acquisto o la vendita di qualsiasi forma di investimento o altro prodotto specifico. Sebbene le informazioni e le opinioni espresse o rappresentate nel presente documento siano state redatte con cura e buona fede, queste non possono considerarsi una garanzia riguardo la loro esattezza e completezza ed hanno natura di semplici consigli, non derivando allo Studio Immobiliare Valle – Flaminia S.r.l. alcuna responsabilità per perdite, danni o minori guadagni che dovessero derivare a seguito di operazioni che debbono comunque intendersi effettuate in piena autonomia gestionale da parte del cliente sulla base di informazioni ed opinioni espresse.
I contenuti del presente memorandum sia in formato fotografico, descrittivo ma anche informazioni orali, visive o trasmesse elettronicamente o con altri mezzi sono da ritenersi di proprietà unica di Studio Immobiliare Valle – Flaminia S.r.l. ed è vietato ogni utilizzo non espressamente autorizzato.
Le commissioni applicate da Studio Immobiliare Valle - Flaminia S.r.l. sono pari al 4 % + Iva sul valore di vendita per la compravendita immobiliare per acquirente / venitore ed il 15 % + Iva sul contratto di locazione annuale a regime per conduttore / locatore salvo differenti accordi preventivi
This site uses various technical cookies to ensure its proper functioning, as well as statistical cookies, including those provided by third parties. If you wish to refuse the use of cookies, you can click on the ‘X’. In this case the default settings will be retained and you will be able to continue browsing without the use of cookies or other tracking tools other than technical ones.
If you wish to accept all cookies, click on ‘Accept All’. If you prefer to select which cookies you want to accept, click on ‘Customise’. If you would like more information, please see our Privacy Policy.
Not accepting or withdrawing consent may adversely affect certain features and functions of this website.