– BERGAMO _ CENTER
Prestigious and stunning panoramic 300 sqm apartment equipped with 28 sqm of terraces, two large cellars and a large garage.
The property is located on the fourth floor of a very elegant building features a large entrance hall with concierge service, large perfectly landscaped shared park with tall trees and a private vehicle and pedestrian entrance in a very quiet, close end street surrounded by greenery, with additional access from the historic city center.
The property is located at the foot of the hills, boasting extraordinarily panoramic views from every side and angle and from every room in the house, the apartment occupies the entire floor of the building enjoying quadruple sun exposure and terraces on each side, it features an elevator with direct access to the apartment for maximum comfort and privacy, located just steps from S. Alessandro street and the pedestrian center of Bergamo, a short walk from the Venetian walls of the upper town and the Conca D’Oro tunnel, yet easily accessible by car or on foot, in a particularly prestigious and sought-after location in a luxury residential context.
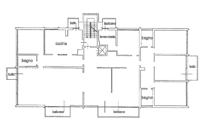
The property comprises a large entrance hall, very wide living area comprising a living room with dining area and access to the panoramic terrace, a lounge with access to the panoramic terrace, and a TV room with access to the panoramic terrace (all the living areas are cleverly connected to each other to ensure maximum brightness, yet partially separated for greater usability), spacious hallway, large and bright eat-in kitchen with views of the upper town and a service balcony, guest bedroom with a bathroom with window (currently used as closet and ironing room), spacious study with a panoramic view, large laundry room with utility rooms and access to the service terrace, another spacious hallway with wardrobes, master bedroom with a private terrace, two additional bedrooms (all spacious) and two bathrooms with windows.
The property was renovated in 2013 and is in perfect condition, equipped with heating and cooling with air treatment and dehumidification, sound system, alarm system, numerous double-glazed and thermally insulated wooden windows and french doors, parquet flooring, suspended ceilings with spotlights and fine marble bathrooms.
The property stands out for its unique brightness and panoramic views, thanks to the presence of enormous windows and French doors throughout the house, every room is flooded with natural light throughout the day, the extraordinarily panoramic location offers views of the entire city of Bergamo, both the city center and the upper part of Bergamo.
This prestigious resort also offers numerous convenient, free and easily accessible condominium car parking spaces.
Strictly confidential informations only, accreditation is required
ENERGY EFFICIENCY: Energy certification pending
Further information and pictures are available in the BERGAMO SPOTLIGHT section of the web site
VALLE REAL ESTATE
Flaminia S.r.l.
Real estate and investments
24121 Bergamo – Italy
V.le Vitt. Emanuele II n. 65
Ph. +39 035 231588
WhatsApp: +39 3920190070
www.studio-valle.com
info@studio-valle.com
Facebook: StudioImmobiliareValle
Twitter: ValleRealEstate
Skype: Valle-Real-Estate
La presente scheda riveste unicamente carattere informativo e viene fornita ad un numero limitato di soggetti selezionati nel quadro dei servizi di consulenza immobiliare. I dati e le informazioni di seguito riportati sono strettamente riservati. Conseguentemente, al ricevimento del presente memorandum è fatto esplicito obbligo alle parti di mantenere il carattere confidenziale delle informazioni e dei dati riportati e di adottare tutte le misure e provvedimenti necessari per l’adempimento di detto obbligo. A seguito di potenziali manifestazioni in interesse, saranno rese disponibili tutte le ulteriori informazioni di dettaglio opportunamente verificate.
Ai sensi delle normative vigenti è vietata qualsiasi riproduzione e/o utilizzo da parte di terzi con qualsivoglia modalità. La presente scheda ed i dati in essa contenuti hanno uno scopo meramente informativo, non costituiscono offerta o forma di sollecitazione per l’acquisto o la vendita di qualsiasi forma di investimento o altro prodotto specifico. Sebbene le informazioni e le opinioni espresse o rappresentate nel presente documento siano state redatte con cura e buona fede, queste non possono considerarsi una garanzia riguardo la loro esattezza e completezza ed hanno natura di semplici consigli, non derivando allo Studio Immobiliare Valle – Flaminia S.r.l. alcuna responsabilità per perdite, danni o minori guadagni che dovessero derivare a seguito di operazioni che debbono comunque intendersi effettuate in piena autonomia gestionale da parte del cliente sulla base di informazioni ed opinioni espresse.
I contenuti del presente memorandum sia in formato fotografico, descrittivo ma anche informazioni orali, visive o trasmesse elettronicamente o con altri mezzi sono da ritenersi di proprietà unica di Studio Immobiliare Valle – Flaminia S.r.l. ed è vietato ogni utilizzo non espressamente autorizzato.
Le commissioni applicate da Studio Immobiliare Valle - Flaminia S.r.l. sono pari al 4 % + Iva sul valore di vendita per la compravendita immobiliare per acquirente / venitore ed il 15 % + Iva sul contratto di locazione annuale a regime per conduttore / locatore salvo differenti accordi preventivi
This site uses various technical cookies to ensure its proper functioning, as well as statistical cookies, including those provided by third parties. If you wish to refuse the use of cookies, you can click on the ‘X’. In this case the default settings will be retained and you will be able to continue browsing without the use of cookies or other tracking tools other than technical ones.
If you wish to accept all cookies, click on ‘Accept All’. If you prefer to select which cookies you want to accept, click on ‘Customise’. If you would like more information, please see our Privacy Policy.
Not accepting or withdrawing consent may adversely affect certain features and functions of this website.